Naprężacze cięgieł rozjazdów/sygnałów

Moderator: mod-Makieta

ODPOWIEDZ
Awatar użytkownika
ArturSchŁ
Administrator
Posty: 11150
Rejestracja: 09 kwie 2006, 07:22
Lokalizacja: Rumia
Kontakt:

Re: Naprężacze cięgieł rozjazdów/sygnałów

Post autor: ArturSchŁ »

JarUs:
Obrazek Obrazek Obrazek Obrazek Obrazek Obrazek
Awatar użytkownika
ArturSchŁ
Administrator
Posty: 11150
Rejestracja: 09 kwie 2006, 07:22
Lokalizacja: Rumia
Kontakt:

Re: Naprężacze cięgieł rozjazdów/sygnałów

Post autor: ArturSchŁ »

Miano: Fotki naprężaczy
Obrazek Obrazek Obrazek
3 foto - Szreniawa po remoncie, 1 i 2 z parowozem Stefanowo koło Zbąszynia
Awatar użytkownika
wicy
Posty: 1713
Rejestracja: 23 mar 2014, 08:27
Lokalizacja: Łódź
Kontakt:

Re: Naprężacze cięgieł rozjazdów/sygnałów

Post autor: wicy »

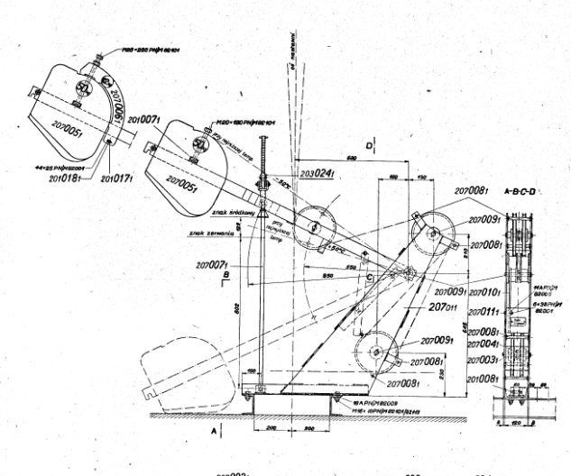
T_Domagalski pisze:Skąd pochodzą te rysunki?
Wycinek z "Album rysunków konstrukcyjnych urządzeń zabezpieczenia ruchu pociągów. Grupa 2", Wydawnictwo Komunikacji i Łączności, W-wa 1961

Added in 15 minutes 5 seconds:
Aha... doczytałem i wiem, gdzie tkwi błąd.
Rysunki pokazane to naprężacze wewnętrzne. Sorry za zamieszanie :oops:
Awatar użytkownika
T_Domagalski
Moderator
Posty: 2157
Rejestracja: 07 kwie 2006, 22:57
Lokalizacja: Warszawa
Kontakt:

Re: Naprężacze cięgieł rozjazdów/sygnałów

Post autor: T_Domagalski »

wicy pisze:Naprężacz semaforowy wygląda tak
A naprężacz zwrotnicowy tak...
Skąd pochodzą te rysunki?
Jak tylko sięgam pamięcią, naprężacze na PKP wyglądały jak te, które podlinkował womo.
Awatar użytkownika
wicy
Posty: 1713
Rejestracja: 23 mar 2014, 08:27
Lokalizacja: Łódź
Kontakt:

Re: Naprężacze cięgieł rozjazdów/sygnałów

Post autor: wicy »

Naprężacz semaforowy wygląda tak
Bez nazwy1.jpg
Po przeskalowaniu wychodzi taka pipka :D
IMG_20190531_200227.jpg
Added in 4 minutes 36 seconds:
A naprężacz zwrotnicowy tak:
Bez nazwy1.jpg
Są jeszcze różnice wyglądu przy stosowaniu ciężarów betonowych
Awatar użytkownika
womo
Posty: 2511
Rejestracja: 19 maja 2008, 13:53
Lokalizacja: Wrocław
Kontakt:

Re: Naprężacze cięgieł rozjazdów/sygnałów

Post autor: womo »

Tu są i zwrotnicowy i sygnałowy.
Kiedyś zrobiłem przeskanowanie i z dwa bardzo uproszczone zrobiłem do moich pędni. W naszej skali to maleństwa.
Ogólnie polecam stronę znaki za darmo :mrgreen:
http://pkprepo.net/category/modele/mode ... ie/page/4/
Awatar użytkownika
ArturSchŁ
Administrator
Posty: 11150
Rejestracja: 09 kwie 2006, 07:22
Lokalizacja: Rumia
Kontakt:

Naprężacze cięgieł rozjazdów/sygnałów

Post autor: ArturSchŁ »

Noch oferuje w TT (13800) napinacze rozjazdów.
Obrazek Obrazek Obrazek
Pamiętam jednak (z dawnych czasów), że nasze napinacze wyglądały inaczej.
Sam znalazłem coś tu.
Jeśli ktoś posiada fotki naszych starych napinaczy i mógłby się podzielić ?
ODPOWIEDZ

Wróć do „Przykłady / pomysły”

Kto jest online

Użytkownicy przeglądający to forum: Obecnie na forum nie ma żadnego zarejestrowanego użytkownika i 0 gości